×
搜索
搜索
网站导航
首 页
关于东精
产品中心
应用案例
新闻动态
联系东精
您的位置:
首页
→
产品中心
→
卫生级管件
→
三通
卡箍三通
上一个:活接式三通
下一个:焊接四通
详情介绍
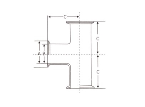
产品参数
工业标准有:ISO、DIN、IDF、3A、SMS等
SIZE
A
B
C
1"
50.5(34)
22.5
55
1¼"
50.5
28.8
60
1½"
50.5
35.1
70
2"
64
47.8
82
2½
77.5
59.5
105
3"
91
72.2
110
3½"
106
84.9
125
4"
119
97.6
148
广东东精钢业有限公司 版权所有
技术支持:
东莞网站建设